בביצוע
בשיווק

רמז 32 Urban, תל אביב

בביצוע | בשיווק

על האיזור

פרויקט המגורים היוקרתי רמז 32 מאפשר לדייריו ליהנות משילוב בין חוויה אורבנית בלב העיר לרוגע והמשפחתיות של הצפון הישן.
מיקומו של הפרויקט נמצא בקרבת כיכר המדינה, כיכר רבין, בתי ספר מהמובילים בארץ ומתחמי עסקים פנאי ובילוי.
הפרויקט בקרבה לקווי הרכבת הקלה המוקמת בימים אלה דבר שישביח את מחירי הדירות בפרויקט וסביבתו וינגיש לדייריו התניידות ידידותית קלה ומהירה.

איכות חיים מתחילה בפרטים הקטנים.
לבחירתכם מגוון טיפוסי דירות בסטנדרט גבוה, בתכנון חכם ועם מפרט מפנק.
במבנה 7 קומות ומגוון רחב של דירות 3,4,דירות גן, דירות מיני פנטהאוז ופנטהאוזים מרהיבים.

כל דירה נבנתה כדי לנצל באופן מיטבי את החלל הפנימי ולאפשר לכם לעצב את הבית שלכם באופן שמשקף בדיוק את מי שאתם.
תכננו של הפרויקט משקף את תנופת ההתחדשות התל אביבית לשיאה בזכות תשומת הלב הניכרת בכל פרט ופרט בבניינים ובסביבתם, ומהווה את המגדלור של החיים התל-אביביים החדשים בצפון הישן.

רחוב רמז הינו אחד מרחובותיה היוקרתיים של צפון תל אביב.

בסמוך לכיכר המדינה , גימנסיה הרצליה ובסמיכות לרחוב אבן גבירול.

מיקומו של הפרויקט המרכזי מצד אחד הופכים את הנגישות אליו לקלה נוחה ומהירה ,

ומצד שני מעניקים לדיירי הפרויקט איכות חיים , שקט ושלווה במרכז העיר תל- אביב.

מיקומו של הרחוב והפרויקט בו הופכים את הפרויקט ליוקרתי ולמבוקש.

האזור עובר תכנית התחדשות עירונית מסבית עובדה זו תשנה את פני הרחוב ותתרום רבות לשיפור

התשתיות לחידוש מראה הבניינים ולעליית ערכן של הדירות.

תוכניות דירה

דירה 1

    • דירה מספר 1
    • קומה: קרקע
    • 4  חדרים
    • שטח דירה: 95 מ”ר
    • שטח מרפסת: 66.7 מ”ר
    • שטח מרפסת שירות: 2.9 מ”ר

דירה 2

    • דירה מספר 2
    • קומה: קרקע
    • 3  חדרים + מרתף
    • שטח דירה: 143 מ”ר
    • שטח מרתף: 43 מ”ר
    • שטח גינה: 100 מ”ר

דירה 5

    • דירה מספר 5
    • קומה: 1
    • 4 חדרים
    • שטח דירה: 92.8 מ”ר
    • שטח מרפסת: 10 מ”ר
    • שטח מרפסת שירות: 2.78 מ”ר

דירה 20

    • דירה מספר 20
    • קומה: 6
    • 3  :חדרים
    • שטח דירה: 76 מ”ר
    • שטח מרפסת: 9.8 מ”ר

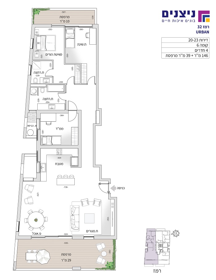
דירה 23

    • דירה מספר 23
    • קומה: 6
    • 2  :חדרים
    • שטח דירה: 70.5 מ”ר
    • שטח מרפסת: 29 מ”ר

דירה 24

    • דירה מספר 24
    • קומה: 7
    • 2 חדרים
    • שטח דירה: 61.8 מ”ר
    • שטח מרפסת: 14.2 מ”ר

דירה 25

    • דירה מספר 25
    • קומה: 7
    • חדרים: 3
    • שטח דירה: 75.5 מ”ר
    • שטח מרפסת: 21.5 מ”ר

דירה 26

    • דירה מספר 26
    • קומה: 7
    • 2  :חדרים
    • שטח דירה: 61.1 מ”ר

דירה 27

    • דירה מספר 27
    • קומה: 7
    • חדרים: 2
    • שטח דירה: 61.1 מ”ר
    • שטח מרפסת: 21.5 מ”ר